UK Commercial Plumbing Design: Waste Drainage, Fire Safety & Backflow Protection

Due to client NDA commitments, the showcased projects represent only a portion of our work and not the full scope of what we’ve delivered.

When we studied this UK commercial plumbing project, our engineers clearly understood one thing — commercial drainage is not about pipes only, it’s about safety, compliance, and long-term performance. At Fluxiss, we work on projects like this with a practical mindset, whether the building is in the UK, US, or any other country.

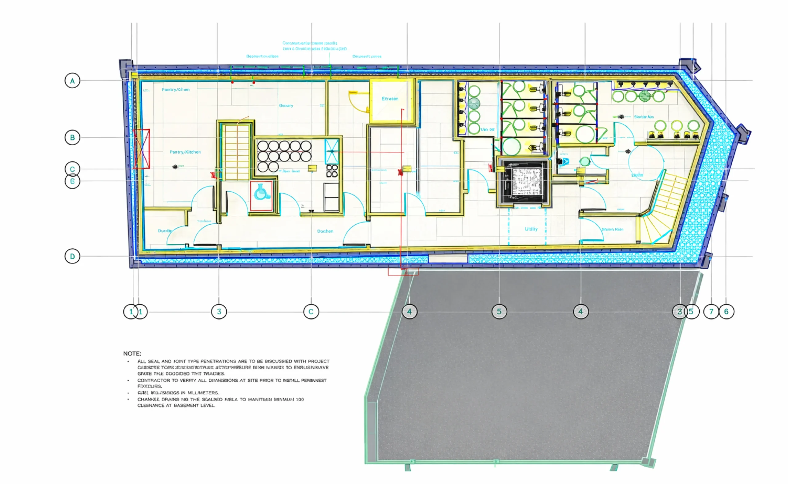
This project involved full plumbing and waste drainage system design for a large commercial hotel building with basement, ground, and multiple upper floors. Our focus was simple: make the system safe, code-compliant, and easy to execute on site.

Smart Commercial Waste Drainage Planning for Multi-Storey Buildings

We noticed early that the building layout created pressure challenges in drainage lines, especially at basement level. In hotels, drainage failure means business loss, so design accuracy was critical.

Challenge: Basement Backflow & System Pressure Control

Basements are always risky. Sewage backflow can happen during heavy load or municipal line failure. We had to make sure wastewater never flows back into the building.

Result: Multi Backflow Protection That Works

We specified multi backflow prevention systems on all basement drainage lines. This protects the property from sewage reversal and meets UK commercial plumbing standards. At Fluxiss, this approach is now part of our global best practice design method.

Fire-Safe Plumbing Design That Meets UK Regulations

Fire stopping was another serious concern. Soil and vent pipes pass through fire-rated slabs, and even one weak point can fail inspection.

Challenge: Fire Spread Through Pipe Penetrations

Plastic drainage pipes can spread fire if not protected correctly.

Result: FD60 Fire Collar Integration

All soil and vent pipe penetrations were designed with FD60 fire collars, installed exactly as per manufacturer guidelines. This ensured fire compartment integrity and smooth approval during tender review.

Pressure Balance & Ventilation Without Over-Design

Vent sizing is often misunderstood. We kept it practical and regulation-based.

Challenge: Trap Siphonage & Air Pressure Imbalance

Basement stub stacks and upper floors needed different solutions.

Result: AAVs & D80mm Vent Stack Strategy

  • Air Admittance Valves (AAVs) were specified on all basement stub stacks
  • D80mm vent stacks were installed from 3rd floor upward
    This maintained neutral pressure and protected trap seals without unnecessary oversizing.

Final Delivery: Tender-Ready MEP Plumbing Design

All outputs were delivered as a 1:50 scale tender package, developed using BIM-based MEP workflows similar to Autodesk Revit and Causeway Flow. The result was a clear, buildable, contractor-friendly design.

Why Fluxiss for Commercial Plumbing Design?

A good MEP design speaks for itself on site. At Fluxiss, we deliver code-compliant, practical, and globally adaptable MEP engineering solutions for hotels, offices, and commercial buildings worldwide.

Need a compliant commercial plumbing design?
Talk to Fluxiss MEP Engineers today